Mieszkanie na sprzedaż, 3-pok. 59.21 m², ul. Fordońska, Bydgoszcz

Cena
657 231 PLN
Powierzchnia
59.21 m²
Justyna Śliwińska
Opiekun oferty
Justyna Śliwińska
Starszy specjalista ds. nieruchomości
📞 +48 786 425 444

Osiedla Ceramika
To wyjątkowo kameralna inwestycja — tylko 39 mieszkań i lokale usługowe , już gotowe na nowych właścicieli. To idealne miejsce dla osób, które chcą połączyć wygodę miejskiego życia z otoczeniem natury. A kiedy przychodzi czas na odpoczynek, wystarczy kilka minut spaceru, by dotrzeć do urokliwego Balatonu – jednego z ulubionych miejsc rekreacyjnych bydgoszczan. Mieszkania na Osiedlu Ceramika zostały zaprojektowane z myślą o komforcie i funkcjonalności.

Przestronne wnętrza , duże trzyszybowe okna zapewniające świetne doświetlenie i ciszę, a także szeroki wybór metraży — od 30 aż do niemal 70 m² — pozwalają dopasować przestrzeń do indywidualnych potrzeb.
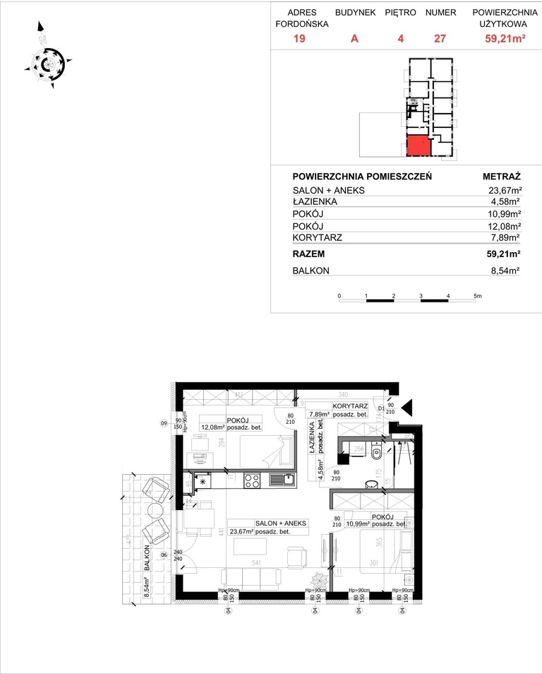
Oferujemy na sprzedaż mieszkanie o powierzchni 59,21 m2
Układ mieszkania:
-Przestronny salon z aneksem kuchennym– świetna baza do stworzenia komfortowej strefy dziennej.
-Ustawne 2 pokoje – idealny na sypialnię, pokój dziecka lub gabinet.
-Korytarz
-Łazienka przygotowana do wykończenia i aranżacji według własnych pomysłów.
-Duży balkon 8,54 m²– doskonała przestrzeń na odpoczynek

Atuty nieruchomości:

Nowoczesne budownictwo i wysoki standard części wspólnych, duże okna zapewniające dużo naturalnego światła, funkcjonalny, dobrze przemyślany układ

Lokalizacja:
Bliskość terenów zielonych, Balatonu i terenów rekreacyjnych to ogromny plus dla rodzin – można aktywnie spędzać czas na zewnątrz.
Osiedle nadaje się zarówno dla osób, które cenią szybką komunikację i życie miejskie, jak i tych, którzy chcą mieć blisko natury. Duża dostępność usług: sklepy, szkoły, przedszkola, usługi – wszystko w niedalekiej odległości.
Osiedle Ceramika to połączenie miejskiego życia z naturą — teren rekreacyjny Balaton to duży plus dla tych, którzy chcą mieć miejski azyl.
*** Kupujący nie płaci prowizji ani podatku PCC 2%.*** 

Z przyjemnością przeprowadzę Cię przez cały proces zakupu – od pierwszego kontaktu aż po przekazanie kluczy. Skontaktuj się, aby poznać szczegóły i dostępne układy mieszkań.