Mieszkanie na sprzedaż, 3-pok. 60.32 m², ul. Jana Karola Chodkiewicza, Bydgoszcz

Cena
935 000 PLN
Powierzchnia
60.32 m²
Julia Zaorska
Opiekun oferty
Julia Zaorska
Doradca ds. nieruchomości
📞 +48 516 975 745

Mieszkanie pod klucz!!!!!!!
Twój adres w rytmie symfonii – prestiż, harmonia, styl
Kameralne osiedle przy ul. Chodkiewicza 9 to wyjątkowa inwestycja, w ramach której powstało 211 starannie zaprojektowanych lokali mieszkalnych od kompaktowych mieszkań dla singli, po przestronne apartamenty dla rodzin. To miejsce, które łączy nowoczesną architekturę, wysoki standard wykonania i komfort codziennego życia.
Na mieszkańców czekają funkcjonalne układy pomieszczeń, przemyślane rozwiązania technologiczne oraz liczne udogodnienia, które podnoszą jakość życia i tworzą wyjątkową, przyjazną przestrzeń do zamieszkania.

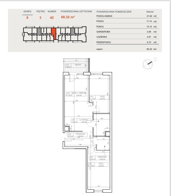
Układ mieszkania
Powierzchnia użytkowa o metrażu 60,32 m² obejmuje:
– Pokój z aneksem kuchennym
– Salon
– Salon
– Garderoba
– Łazienka
– Przedpokój 
– Balkon

Mieszkanie doskonale sprawdzi się dla singla, pary lub jako bezpieczna inwestycja kapitału w nieruchomość pod wynajem.

Dodatkowo możesz dokupić: 
– Miejsce postojowe w hali garażowej – od 54 000 zł
– Miejsce postojowe na terenie zamkniętym – 29tys zł 
Komórkę lokatorską – 5 500 zł/m² 

*** Kupujący nie płaci prowizji ani podatku PCC 2%.*** 

Na terenie inwestycji znajdziesz: – miejsce do ładowania samochodów elektrycznych
– halę garażową i komórki lokatorskie
– szybką i cichobieżną windę
– monitoring i ogrodzony teren
– zagospodarowaną, zieloną przestrzeń wokół budynku
– wysoki standard części wspólnych

Lokalizacja, która sprzyja życiu 

Osiedle Symfonia powstaje w wyjątkowym miejscu – w samym sercu Bydgoszczy, w otoczeniu zieleni i miejskich udogodnień. W pobliżu znajdują się parki, sklepy, restauracje, szkoły i przedszkola, a także kampus Akademii Muzycznej, który nadaje okolicy niepowtarzalny, artystyczny klimat.
Dzięki doskonałej komunikacji z centrum miasta, do najważniejszych punktów Bydgoszczy dotrzesz w zaledwie kilka minut.
To idealne miejsce dla tych, którzy cenią sobie wygodę miejskiego życia, a jednocześnie pragną spokoju i harmonii w codziennym otoczeniu.
 
Z przyjemnością przeprowadzę Cię przez cały proces zakupu – od pierwszego kontaktu aż po przekazanie kluczy.
Skontaktuj się, aby poznać szczegóły i dostępne układy mieszkań.